完全理解KYN28A開關柜
完全理解KYN28A開關柜詳細資料由專業的低壓開關柜、低壓配電柜、低壓配電箱報價廠家為您提供。
KYN28A是一種3.6~15KV電壓中心型開關柜型,因其優越的性能和結構而被廣泛使用。然而,仍有許多人不完全理解KYN28A 開關柜,設計笑話,操作事故,甚至個人簡單地選擇老XGN,GG-1A和HXGN機柜,結構復雜,操作不便,維護困難。為了讓更多的人了解和使用KYN28A開關柜,本文分析了KYN28A開關柜的一些特點和性能。

KYN28室內金屬鎧裝開關設備是在KYN 28室內金屬鎧裝開關設備基礎上的升級產品。KYN28A的每個隔間都隨著安裝在內部的部件的變化而變化,電氣方案也在不斷變化。
1定義

2技術參數

3結構特征
3.1柜體形狀和尺寸

3 . 1 . 1 12kv及以下的機柜

3.1.2 15KV柜體

3.2機柜結構
開關柜由固定柜體和可抽出部分(縮寫為手車)組成,如上圖所示。開關柜被隔板分成功能單元。柜體外殼和各功能單元隔板用鍍鋁鋅鋼板螺栓連接。它具有很強的耐腐蝕性和抗氧化性,并且具有比相同鋼板更高的機械強度。該功能單元大致可分為四個部分,即母線室(A)、斷路器手車室(B)、電纜室(C)和繼電器儀表室(D)。每個單元外殼都接地。
3.2.1公共汽車室(a)
母線室主要用于承載該柜主母線和分母線的取送電。主母線通過穿墻套管與套管隔離。同時,穿墻套管確保了機柜間主母線的穩定性和平滑度。分支母線的一端與主母線重疊,另一端通過上靜觸頭盒與手車連接。隨著科學技術的發展,電器的容量和配電電流都在增加,主母線的數量也在增加。
因此,“引腳”排列(圖2和圖4)和“1”排列(圖3)出現在主總線上。當主母線的數量為1或2時,為了節省鍍鋁鋅板材料,主母線通常布置成“銷”形,但也可以布置成“1”形。然而,如果有3輛主公共汽車,主公共汽車必須以“1”形排列。由于“1”布置,為了確保電氣間隙和爬電距離,母線室被加高,從而形成行業中的一個通用術語——“等高柜”(圖3)。
3.2.2斷路器手車室(b)
斷路器手車室是安裝手車的特殊功能單元。一般來說,可放置在斷路器手車室內的手工藝品分為斷路器手工藝品、計量手工藝品、電壓互感器手工藝品(PT手工藝品)、接觸器手工藝品(FC手工藝品)和隔離手工藝品。相同規格的手工藝品可以完全互換。手車的上觸頭通過活動板(閥)與上靜觸頭盒連接,下觸頭通過活動板(閥)與下靜觸頭盒連接。手推車通過下方可拉出的水平隔板進出,并與前曲柄結合。根據移動位置的不同,斷路器的行程可分為隔離位置、測試位置和工作位置。應在試驗位置和工作位置安裝鎖定裝置,以確保手車在上述位置時不能自由移動,并且在移動手車時必須解除聯鎖。
3.2.3電纜室(c)
電纜室因安裝引入和引出電纜而得名。除電纜外,電流互感器、接地刀、避雷器、零序電流互感器等電氣元件。都安裝在電纜室里。有時,電纜室還安裝有電壓互感器手車或固定電壓互感器。電纜室位于開關柜的底部,電氣元件和電纜通過分支總線連接到較低的靜態觸點。電纜室左右兩側設有小控制線槽,下側設有小接地母線和電纜密封板。
3.2.4繼電器儀表室(D)
繼電儀表室,又稱低壓室,位于斷路器手車室的前上部。它以繼電器命名,儀器和一些輔助部件安裝在面板內部和上面。通過右上角的小線槽連接到機柜頂部的小銅排總線,提供開關柜所需的信號電源、控制電源和操作電源。
4安全
4.1絕緣距離
4.1.1電氣間隙
由于采用開關柜來分配三相交流電,因此必須保證相間和相對地之間有一定的距離,否則會造成短路,危害整個電力系統。當使用空氣作為絕緣介質時,高度在1000米以內,電氣間隙要求見表1。

表1
4.1.2漏電距離
對應于KYN28A開關柜設備,相和相對地之間的爬電距離比如下:
(1) KYN28A開關柜按照1級設計的設備,電瓷14毫米/千伏,有機絕緣16毫米/千伏;
⑵ KYN28A開關柜按2類設計的設備,電瓷18毫米/千伏,有機絕緣20毫米/千伏。
4.2五項電氣預防措施
4.2.1防止負荷分離開關
斷路器、負荷開關和接觸器閉合時,隔離開關不能動作,可大大減少電弧對設備的損壞。KYN28A開關柜表示當KYN28A開關柜運行時,禁止搖動手車。
4.2.2防止假分、假斷路器、負荷開關、接觸器
只有當操作說明與操作設備相對應時,被操作的設備才能被操作,任何錯誤或非法操作都不能操作設備。KYN28A開關柜的二次控制元件和保護電路的設計中充分考慮了這一點,斷路器手車本身裝有防跳和閉鎖裝置,從而在更大程度上防止誤操作。
4.2.3當接地開關處于閉合位置時,防止斷路器和負載開關閉合
只有當接地開關處于斷開狀態時,隔離開關或手車才能閉合到工作位置,斷路器和斷開開關才能操作閉合。這是通過KYN28A機械結構設計中的機械聯鎖和電氣聯鎖實現的。
4.2.4防止接地開關充電時誤合。
隔離開關或手車只能在斷路器打開和閉合時操作,接地開關只能在手車從工作位置退回到測試位置時閉合。這是通過KYN28A機械結構設計中的機械聯鎖實現的。
4.2.5防止誤入帶電房間
只有當車廂沒有充電時,門才能打開進入車廂。當設計KYN28A開關柜時,一般通過在電纜室和后門安裝電磁鎖來實現。對于配備有接地刀的開關柜而言,電纜室和后門不能在斷開位置開關柜打開,因為接地刀在操作傳動機構時已經考慮了這個問題。因此,在安裝接地刀的KYN28A開關柜處,不得安裝電磁鎖。
4.3故障壓力釋放
手車室、公共汽車室和電纜室上方設有泄壓裝置。當斷路器和母線中出現內部故障電弧時,隨著電弧的出現,開關柜內部氣壓上升。安裝在門上的特殊密封環密封了機柜的前部。安裝在頂部的減壓金屬板將自動打開,釋放壓力和廢氣,從而確保操作員和開關柜設備的安全。
4.4除濕裝置
KYN28A開關柜通常安裝在建筑物的首層或地下室。幾乎沒有通風,陽光更少。一般來說,室內濕度相對較高,有些地方甚至會出現結露,對電力安全運行構成很大威脅。為了避免這些條件造成的影響,KYN28A開關柜設計有溫度和濕度控制裝置。在上述情況下,分別安裝在斷路器手車室和電纜室的加熱器將自動啟動進行加熱和除濕,以確保KYN28A開關柜的安全運行。
4.5操作指示器
為了直觀了解KYN28A開關柜的運行情況,防止誤操作,在KYN28A開關柜的面板上安裝了開關狀態綜合指示器,電源、除濕裝置、手車和接地刀的運行狀態一目了然。站在機柜前面,通過操作指示裝置可以清楚地了解KYN28A開關柜的工作狀態。
4.6接地裝置
電纜室內單獨安裝一根40*8接地銅排。銅排可以穿過相鄰的柜體,與柜體接觸良好。同時,它可以被機柜中直接接地的組件使用。由于KYN28A整個柜體采用鍍鋁鋅板拼接,整個柜體處于良好的接地狀態,確保操作人員在操作過程中接觸柜體的安全。
設備安裝
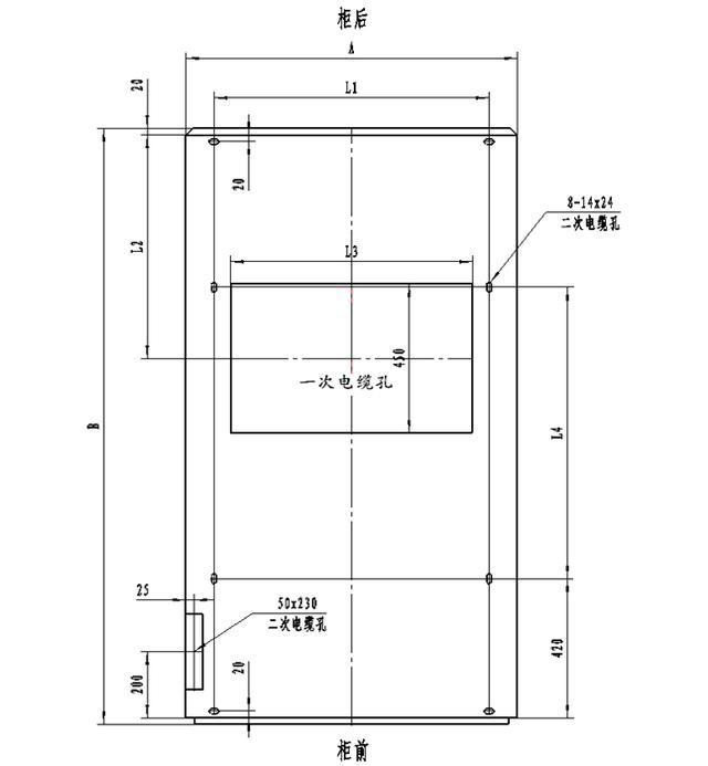
KYN28A開關柜安裝基礎的施工應符合《電力建設施工及驗收技術規范》。一般來說,混凝土要澆兩次。首次采用開關柜安裝結構構件,即角鋼、方鋼或槽鋼構件的安裝基礎。第二次澆筑混凝土面的補充層厚度一般為60毫米,澆筑混凝土補償層時,混凝土高度應比構件平面低1 ~ 3毫米。
基礎設施安裝期間應確保安裝質量。基礎設施安裝的技術標準為1㎡,公差為1 mm,為保證開關柜基礎的合理方便施工,施工單位應提前掌握KYN28A開關柜設備的安裝尺寸。具體施工細節應嚴格按照KYN28A開關柜設備安裝尺寸圖進行,如下所示。

KYN28A開關柜設備安裝尺寸示意圖

表2
(摘自《電工技術》,原標題是《KYN28A開關柜分析》,作者是劉新虎。)
更多選型規格報價定制等問題可及時聯系廠家,以上就是完全理解KYN28A開關柜全部內容。
- 上一篇:視頻| 10KV高壓開關柜說明
- 下一篇:開關柜防止電擊的關鍵點
